INFO@BUNANDLAU.com

+62 813 1724 8596

Jalan tenis, cengkareng indah, kapuk, jakarta-barat 11730

COPYRIGHT Ⓒ 2020 – 2025
BUN & LAU STUDIO
ALL RIGHTS RESERVED

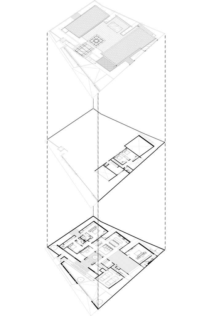
HUME BATU

Location: Pangkalpinang, Indonesia

Residental | 700m² | 2020

The purpose of the design is to create basic functional spaces for everyday life, local materials incorporated into the architecture confer the popular warmth of the buildings and simultaneously engage a project of contemporary features with stone wall that dominate the facade.

Façade. It seemingly has two building masses with a gable roof that sloped low in between. The façade is dominated by natural materials such as local mountain stones, unfinished old teak wood, and unfinished black steel. All the materials are left bare so that the soul of the material would stand out, hence creating a contemporary expression with tropical nuances.

Interior. The dining area and kitchen are combined linearly in one space with the living room as a way to make the room feels bigger without additional walls or partitions.