Jalan tenis, cengkareng indah, kapuk, jakarta-barat 11730
COPYRIGHT Ⓒ 2020 – 2025 BUN & LAU STUDIO ALL RIGHTS RESERVED
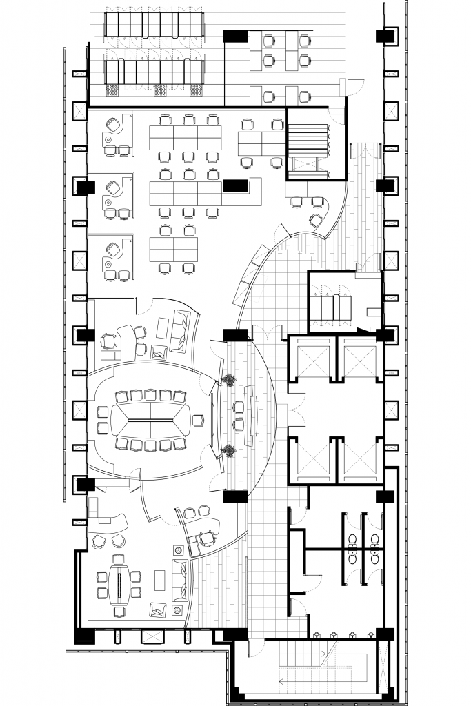
BPS DATA CENTER
Location: Jakarta, Indonesia
Office | 600m² | 2017
The preference of blue, green and orange on the padded panel is derived from the color of the BPS logo, forming a set of triangles that seem to represent statistical data in a pie chart.Floor lines, wall partitions, outline up ceilings are made dynamic and flexible, derived from the essence of an ever-changing collection of statistical figures.
Floor lines, wall partitions, outline up ceilings are made dynamic and flexible, derived from the essence of an ever-changing collection of statistical figures.