Jalan tenis, cengkareng indah, kapuk, jakarta-barat 11730
COPYRIGHT Ⓒ 2020 – 2025 BUN & LAU STUDIO ALL RIGHTS RESERVED
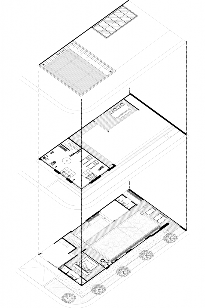
GREENLAKE EUROPE
Location: Tangerang, Indonesia
Residental | 485m² | Under Construction
Greenlake Europe is an additional housing designed mostly for leisure purposes. The highlight of the design is located on the pool and the foyer decks. Lighting is carefully placed around the house, providing a soft and inviting ambience.