INFO@BUNANDLAU.com

+62 813 1724 8596

Jalan tenis, cengkareng indah, kapuk, jakarta-barat 11730

COPYRIGHT Ⓒ 2020 – 2025
BUN & LAU STUDIO
ALL RIGHTS RESERVED

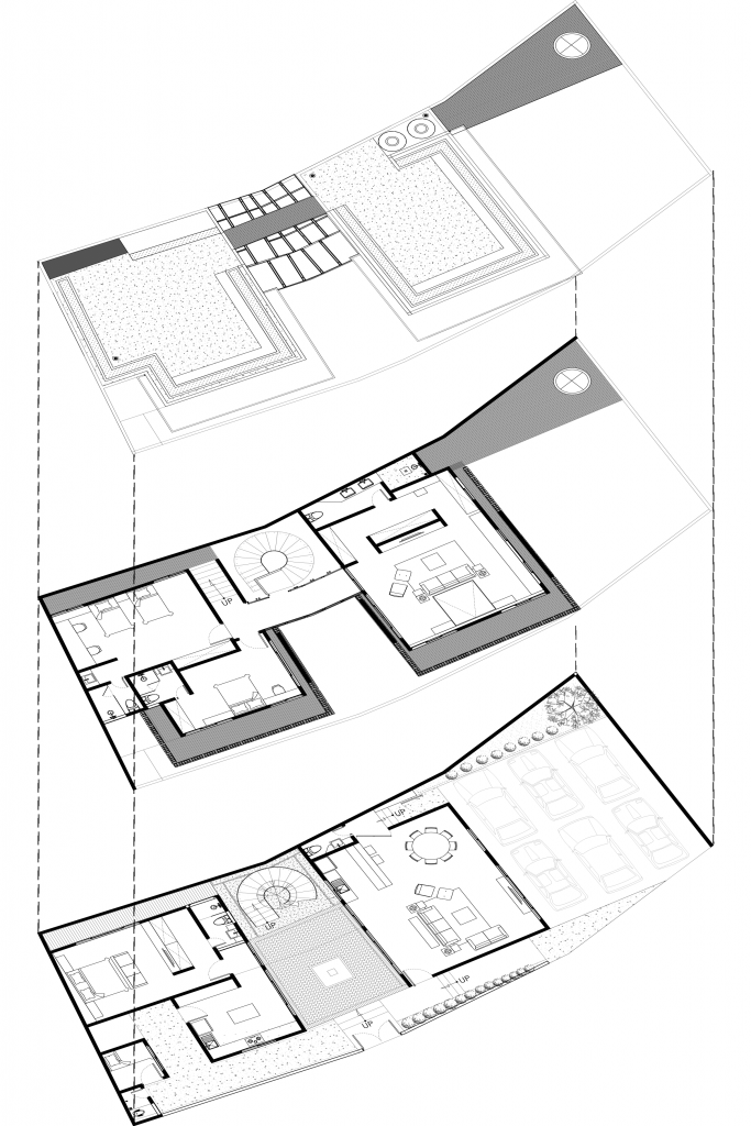
SEMABUNG HOUSE

Pangkalpinang, Indonesia

Residental

Semabung House carries a deep locality and hints of medernism within its design. The use of stones and roster wall provides symmetry to the building, and the materials are left bare to further accentuate it. The roof, unlike traditional houses in Indonesia, is built as a rooftop for multi purposes.