INFO@BUNANDLAU.com

+62 813 1724 8596

Jalan tenis, cengkareng indah, kapuk, jakarta-barat 11730

COPYRIGHT Ⓒ 2020 – 2025
BUN & LAU STUDIO
ALL RIGHTS RESERVED

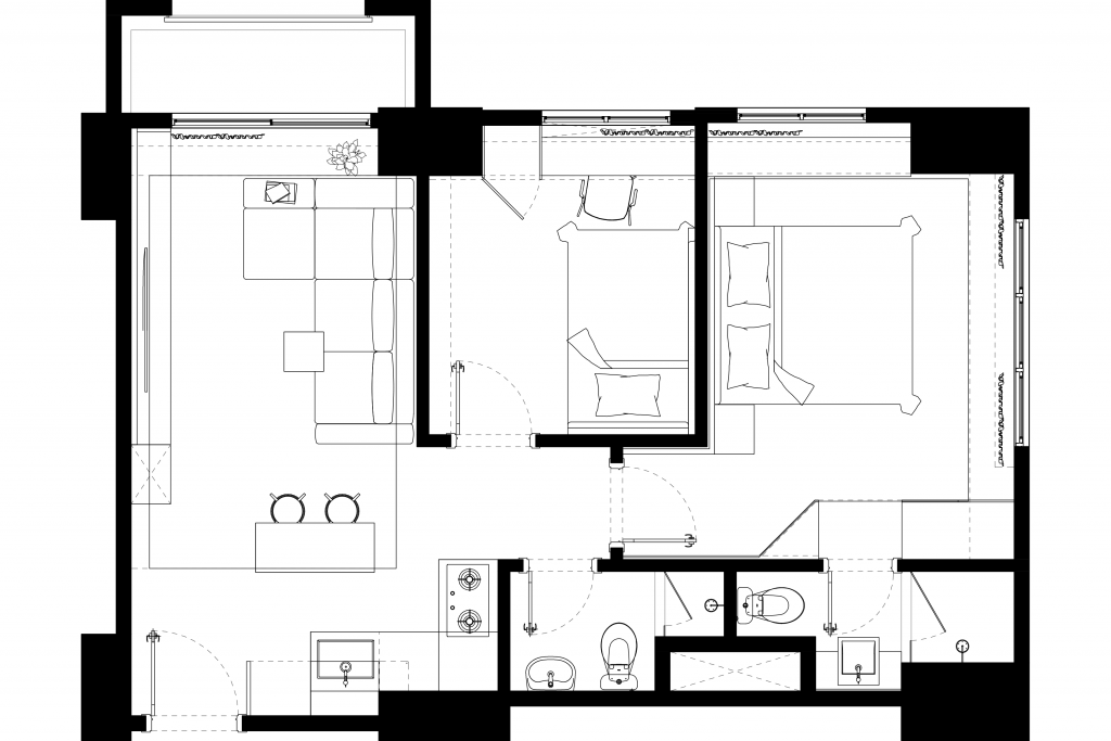
SERPONG M TOWN RESIDENCES

Location: Tangerang, Indonesia

Apartment | 60m² | 2021

The design for Serpong MTown Apartment is a straightforward and modern in approach. It is dominated by uplight LED lighting spanning on all sides of the walls, making the room feels bigger than it is. The materials are mostly neutrals with hints of wood to provide warmth to the whole room experience.