INFO@BUNANDLAU.com

+62 813 1724 8596

Jalan tenis, cengkareng indah, kapuk, jakarta-barat 11730

COPYRIGHT Ⓒ 2020 – 2025
BUN & LAU STUDIO
ALL RIGHTS RESERVED

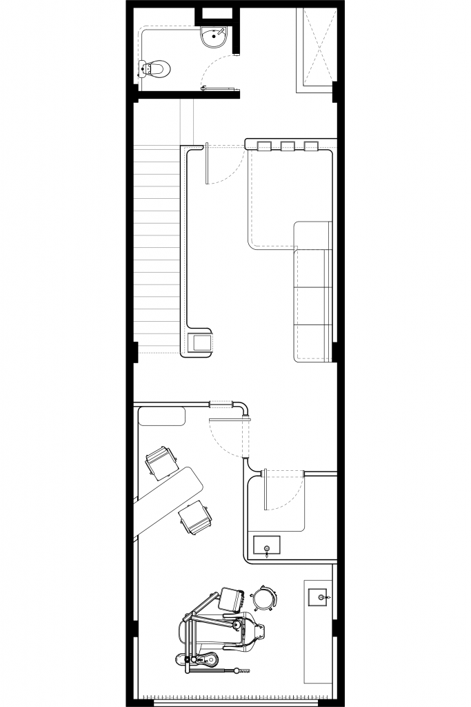
T.SMILE

Location: Tangerang, Indonesia

Healthcare | 70m² | 2022

T.Smile Dental Clinic gave a clean and warm atmosphere. The design uses a user-centered approach, with the customer as the main focus. The warm nuances from the wood help calms the customer. A stage is provided next to the seating area for kids to play in. Uniquely, the consultation table is the highlight of the design, with a form that seemingly folded from the wall next to it.