INFO@BUNANDLAU.com

+62 813 1724 8596

Jalan tenis, cengkareng indah, kapuk, jakarta-barat 11730

COPYRIGHT Ⓒ 2020 – 2025
BUN & LAU STUDIO
ALL RIGHTS RESERVED

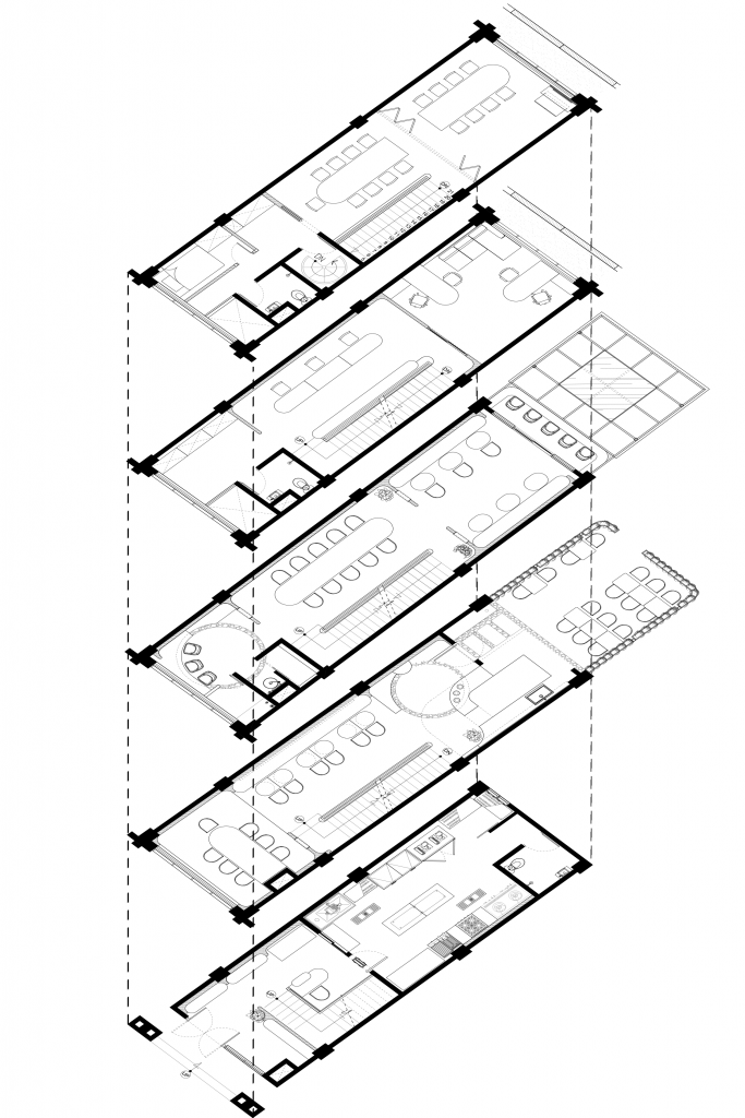
TAWA RIANG

Location: Jakarta, Indonesia

Commercial | 388m² | Proposal | 2021

Tawa Riang is a mix-use commercial space, equipped with cafe and office area. The cafe is designed in a playful yet soft manner, with curved edges applied to the furniture, floor pattern, and openings. It also plays a lot with texture and patten, prevalent in the terrazzo floor and kamprot wall.